32+ Tampines Trilliant Floor Plan PNG

Come join the discussion about structures, styles, reviews, scale, transportation, skylines.

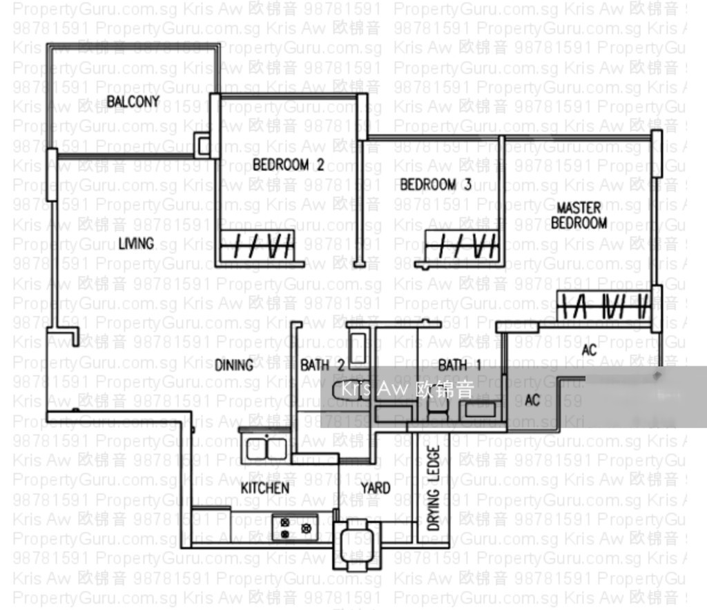
32+ Tampines Trilliant Floor Plan PNG. In addition, the tampines trilliant is within driving distance to orchard road, singapore's popular shopping area, is a 21 mins drive away. With a squarish and efficient layout, you can fit in a queen size bed in all the bedrooms.

Treasure At Tampines 2019 Official By Sim Lian Group Review
Treasure At Tampines 2019 Official By Sim Lian Group Review from treasuretampinescondos.sg
How to become a thought leader in y. Using our free online editor you can make 2d blueprints and 3d (interior) images within minutes. Treasure at tampines is proudly developed by sim lian group limited.

Floorplanner is the easiest way to create floor plans.

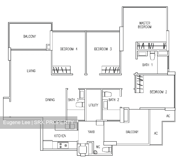
Which is really a wastage and too many toilets too imagine 4. New ec @ tampines central 7. Permissible gross floor area (gfa). Studied the floor plan already and found there is 2 balcony and a big yard area in all the 4 rooms and most of the 3 rooms units.